SHH-B2 гофрированная папка склеивающие


Поделиться:

Цена:*
Стоимость в USD (на сегодня):Узнать

Количество:

Описание и отзывы

Характеристики


LOGO.JPG 



Product Description


 


Specifications


SHH-B2 ( Corrugated type) series high speed automatic corrugated folder gluer are using imported electrics and parts , especially for export , able to pre-press the paper and have a better pasting effect , also have a wide application ,this series have features like nice application , high speed , flexible adjustment , big width range . Special for making boxes from flute F , E , C , B ,as wine box , carton box , average speed 8000pcs/hr depends on different box size , this series widely applied to wine factory , carton box factory and the other post reducethe glue waste by two third , it is the perfect product for post-press finishing .


 


Characteristics


 


 


 































































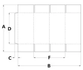
Common box type and size:(mm)

 




Model 


1050B21250B21450B21650B21850B22050B2

A


150-800150-800150-800150-800150-800150-800

B


200-900200-1100200-1300200-1500200-1700200-1900
CMin:15Min:15Min:15Min:15Min:15Min:15
DMin:120Min:120Min:120Min:120Min:120Min:120

F



Min:100



Min:100



Min:100



Min:100



Min:100



Min:100



 































































The patting size:(mm)

 




Model 


1050B21250B21450B21650B21850B22050B2

A


150-800150-800150-800150-800150-800150-800

B


280-900280-1100280-1300280-1500280-1700280-1900
CMin:15Min:15Min:15Min:15Min:15Min:15
DMin:120Min:120Min:120Min:120Min:120Min:120

F



Min:100



Min:100



Min:100



Min:100



Min:100



Min:100



  



Technical Parameter










































Linear velocity



0~220m/min



Suitable paper quality



200~800g/m² cardpaper ,A B C E F flute paper



Paste box basic form



One size edge pastes ,two side edge pastes



Feeding way



Automatically and continuously feeding



Adhesive



Water-base cold glue



Needed power



7-9 KW    380V 3P 50HZ  



Weight



2600(2800)(3000)(3200)(3400)(3600)KG



Overall Size



10000*1600(1800)(2000)(2200)(2400)*1300mm



The scope of Count



0~999999



 



Product Pictures


 SHH-B2-1 -2


 



Product Process


 -8 -1


 



Packaging & Shipping


 


-1 _QQ20151124185249.jpg 



Our Factory


 


 


GPNGSI.jpg


 



Our Client


 


.jpg 



Exhibition


 


11.png


 



Certificate


 


444.jpg



Contact US


 


Wenzhou Gaotian Packing Machinery Co., Ltd


Contact :Alice


Cel/WhatsApp:+86-18967700158/13506515360


 



Новинки - Розница

0.0647 s.